Konvektomat Retigo O 621 i

Cena Na dotaz
Objednací číslo 16204
Záruka (měsíce) 24
Skladem Ano
  • cena na dotaz

Modelová řada konvektomatů RETIGO Orange Vision vychází z požadavků uspokojit uživatele s nižšími nároky na množství funkcí, ale s důrazem na vysokou kvalitu a jednoduchost ovládacího panelu. Na rozdíl od modelové řady Blue Vision jsou konvektomaty Orange Vision vybavené pouze klíčovými funkcemi. Všechny modely řady Orange Vision disponují automatickým mytím. Elegantní funkční design podtrhuje jednoduchost přístrojů, LED diodový displej pak umožňuje snadné nastavení a ovládání.

Velikost 621 je ideální pro provozy s kapacitou 100 - 300 jídel denně. Rozměr gastronádob je GN 2/1 (650x530 mm) nebo volitelně GN 1/1 (530x325 mm). K velikosti 621 je možné přikoupit široké příslušenství – nerezový podstavec apod. Model 621 lze postavit do sestavy s konvektomatem 621 nebo 1021. Systém vývinu páry je nástřikový a tepelným zdrojem je elektřina.

Vaření
  • Horký vzduch 30 – 300 °C
  • Kombinovaný režim 30 – 300 °C
  • Vaření v páře 30 – 130 °C
  • Bio vaření 30 – 98 °C
  • Vaření/pečení přes noc – šetří čas i peníze
  • Pokročilý systém vývinu páry – skvělé výsledky vaření v páře díky dvoustupňovému předehřevu vody v integrovaném tepelném výměníku
  • Zásuvy napříč – bezpečnější a pohodlnější práce s gastronádobami. Lepší vizuální kontrola vložených gastronádob se surovinami.
  • Regenerace/banketing – podávejte více pokrmů v kratším čase
  • Nízkoteplotní vaření – nižší váhové ztráty, lepší chuť
  • Automatický předehřev/zchlazení varné komory s možností zadat požadovanou teplotu
Vision Controls
  • Dotykový panel – panel funguje perfektně za všech podmínek a má rychlou odezvu, žádné mechanické prvky, tlačítka či kolečka
  • Nekonečný čas vaření - uspoří čas při vaření v provozní špičce
  • Automatický start – možnost naplánovat odložený start
Ostatní vybavení
  • Active Cleaning – systém automatického mytí s minimální spotřebou vody
  • Trojité dveřní sklo – minimální únik tepla, nízká spotřeba energie, již žádné popálení o vnější sklo
  • 7 rychlostí ventilátoru – kontrola rychlosti distribuce a cirkulace vzduchu
  • Fan Stop – okamžité zastavení ventilátoru brání úniku tepla a páry při otevření dveří a zabraňuje opaření obsluhy
  • Obousměrný ventilátor – minimální rozdíly v barvě upečených jídel
  • Robustní klika – pro pohodlné otvírání stroje, antibakteriální materiál
  • AISI 304 nerezová ocel – kvalitní nerezové materiály se speciální povrchovou úpravou pro delší životnost
  • Hygienický varný prostor se zaoblenými vnitřními rohy – snadná údržba
  • Odkapová dveřní vanička - zachytává kondenzát z dveří
  • Dva přívody vody – pro změkčenou a nezměkčenou vodu
  • WSS (Water Saving System) - speciální systém odpadu & vestavěný tepelný výměník zajistí velmi nízkou spotřebu vody
  • Vyjímatelné držáky gastronádob s roztečí 73 mm
Konektivita
  • USB rozhraní – snadné přehrávání dat z a do konvektomatu
  • VisionCombi software – správa programů a piktogramů ve vašem PC, prohlížení dat HACCP 
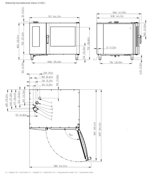
Model O 621 i
Technická specifikace 2E0621IA
Energie Elektřina
Vývin páry Injekční
Kapacita 6 x GN2/1
Kapacita (volitelná) 12 x GN1/1
Kapacita jídel 100 - 300
Rozteč zásuvů  73 mm
Rozměry (š x v x h)  1121 x 826 x 1018 mm
Váha 160 kg
Celkový příkon 18,6 kW
Tepelný výkon  18 kW
Jištění 32 A
Napájení 3N~/380-415V/50-60 Hz
Hlučnost do 70 dBA
Přípojka vody/odpadu G 3/4” / 50
Teplota 30 - 300 °C